Građevinsko zemljište 2,24 ha, Obrenovac
Prodaje se građevinsko zemljište u Obrenovcu ukupne površine 2,24 ha,…
2240000EUR
Novi Sad
Prodaja
130570EUR
Status:
Prodaja
Cena:
130570EUR
Tip nekretnine:
- Stan
Lokacija:
Novi Sad




Zadovoljstvo nam je što smo u prilici da ponudimo stanove u novogradnji koji se prostiru u sklopu savremenog stambenog kompleksa, osmišljen kako bi spojio komfor urbanog života sa prirodnim okruženjem.
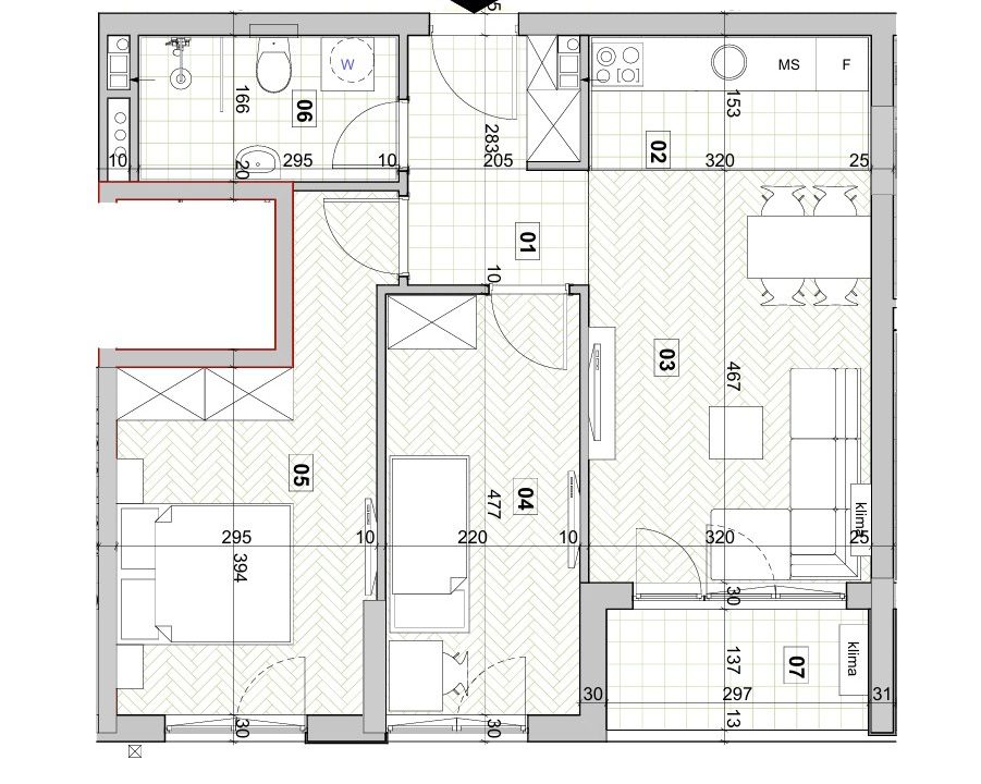
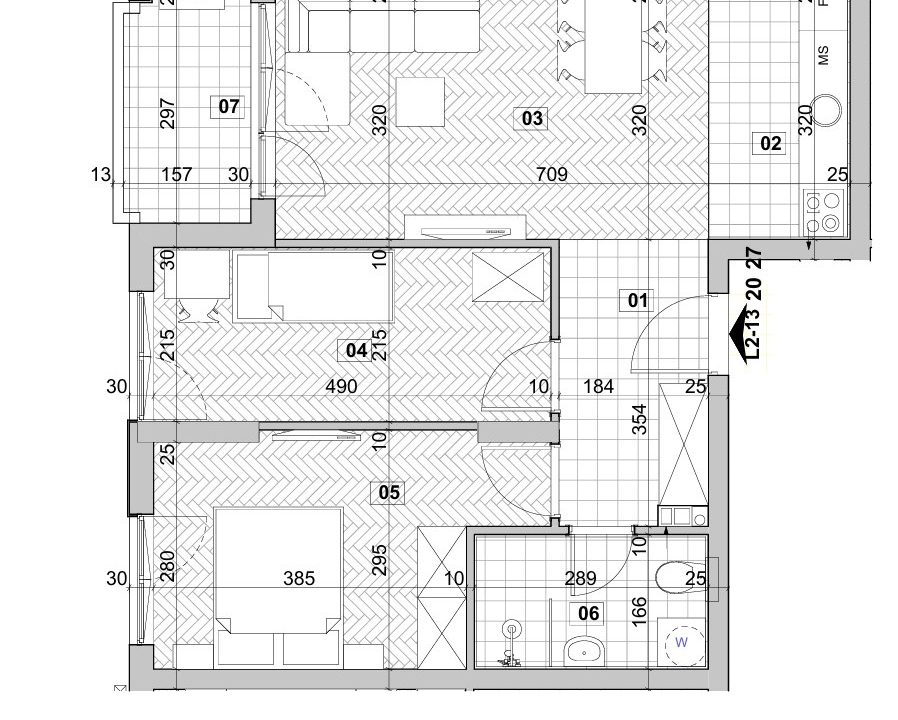
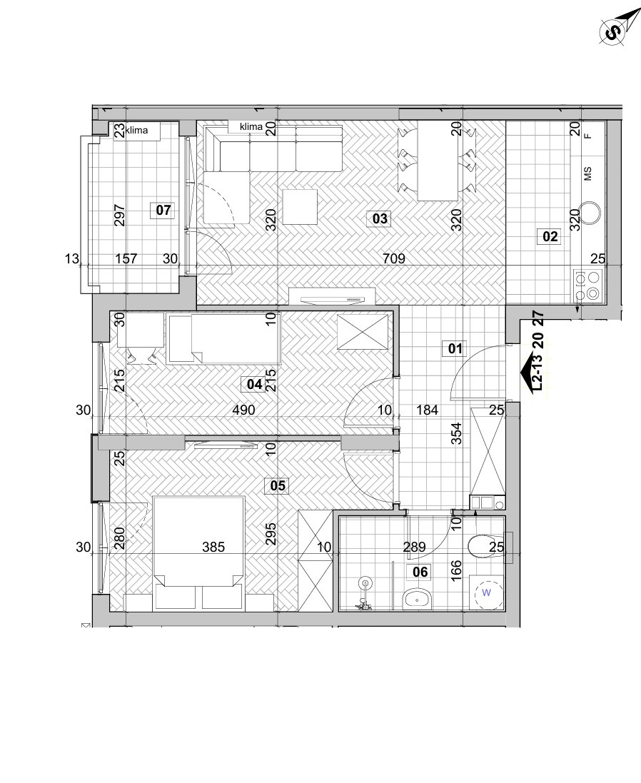
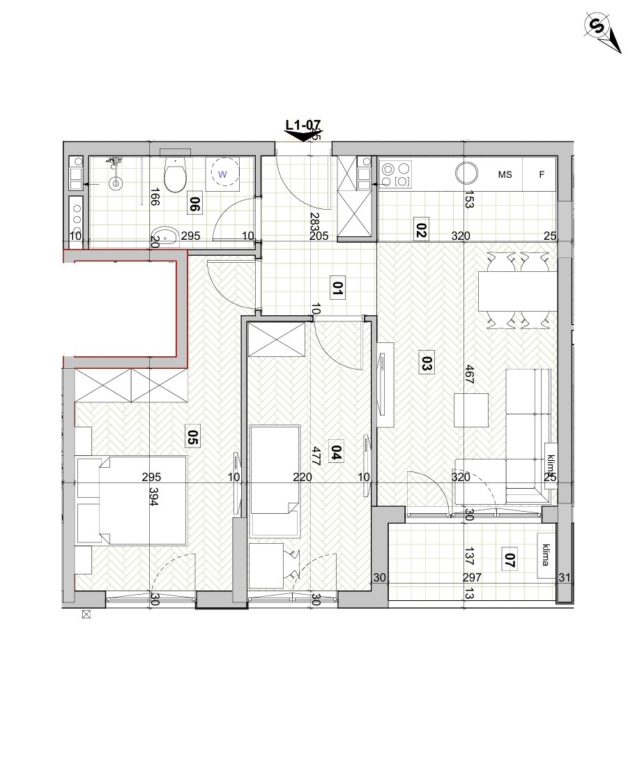
Stan 59.61m² se nalazi na prvom spratu i sastoji se iz hodnika, dnevne sobe sa kuhinjom i trpezarijom, 2 spavaće sobe, kupatila i terase.
Pouzdan i siguran investitor koji se sa bogatim iskustvom i profesionalnim timom posvećeno bavi izgradnjom modernih i kvalitetnih stambenih kompleksa.
Svaki projekat grade sa posebnom pažnjom posvećujući se svakom detalju i osiguravajući vrhunski kvalitet gradnje.
Obezbeđuju najbolji odnos cene, kvaliteta i lokaliteta u Novom Sadu.
Potpuno nova rezidencijalna lokacija u Novom Sadu, gde je sve podređeno kvalitetu zivota, komforu i zdravlju buducih stanovnika.
Projektovan je kao stambeni kompleks, spratnosti Po+Pr+3.
Trosobni stanovi su dostupni u lamelama 1-4, na prizemlju, I, II i III spratu.
Površine su od 56,57m2 do 59,35m2, a cene su od 2200€/m² do 2310€/m² (CENE SA PDV-om)
Mogućnost kupovine putem stambenog kredita.
Više informacija na tel. 062/330-565 i 069/613-761
Agencijska provizija 3% (min. 1000 €)
Ozbiljnost, predanost poslu, kao i visok stepen profesionalizma ističu agenciju Kvadrat na tržištu nekretnina kao veoma sigurnog i pouzdanog partnera svakoj porodici, pojedincu ili preduzeću koje se opredeli da prodaje, kupuje ili iznajmi nekretninu.
Prepustite brigu pronalaženja željene nekretnine našem iskusnom timu licenciranih agenata, uz obezbeđenu pravnu sigurnost.
Prodaje se građevinsko zemljište u Obrenovcu ukupne površine 2,24 ha,…
2240000EUR
Sa velikim zadovoljstvom , predstavljamo Vam stambeni objekat za kolektivno…
9000EUR